030 - Nieuwe Veenmarkt Zwolle NL, 2023 1st prize

The Dutch Board of Government Advisors and Zwolle city council have selected, from over 50 entrants, ‘De Nieuwe Veenmarkt’ as the winner of the biobased design competition.

 

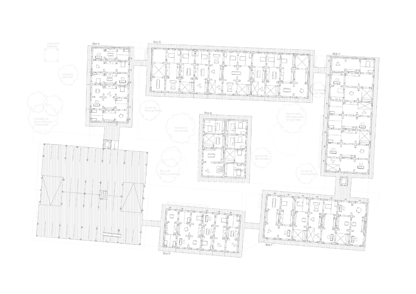
The 20’000 m2 plan includes 130 homes (of which 70% are social and affordable), a community centre, an energy production hub, car and bicycle storage; and is organised around a collective garden where people, animals and plants live together.

 

The jury, chaired by Chief Government Architect Francesco Veenstra, was unanimous in its verdict, praising the “integrated and inclusive aspects of the plan, which demonstrates both idealism and realism.” There was also appreciation for the way the proposal sketched out a vision over the longer term, which they found particularly convincing. The jury underlined their high expectations for the proposal, looking forward to the next steps of the construction process.

 

With the programme A New Building Culture, the Dutch Board of Government Advisors has challenged clients, designers and professionals in the building industry to show, by using biobased materials, how a new building culture can be established. A building culture that contributes to sustainable, nature-inclusive and high quality living and working environments. Not reasoning from what has to be done, but what can be done, with soil and water systems serving as a foundation for this nature inclusive biobased form of building. With this competition, the Municipality of Zwolle hopes to act as a catalyst for changes in building culture.


Location 
Zwolle, the Netherlands
Status 
Competition 2023, 1st prize
Program 
Residential, Medical, Parking ,Public Space, Landscape
GFA 
21,000 m2
Partner architect 
Studio Nauta
Developer 
Schipper Bosch
Landscape 
Joost Emmerik
Images 
Filipo Bolognese
Structural Engineer 
Solid Timber Engineering
Timber Structures 
Treetek
Clay & Earth Structures/Materials 
BC Materials
Energy Concept 
Adviesbureau DWA
Social Innovation 
AndThePeople
Ecology 
ECONU
030 - Nieuwe Veenmarkt Zwolle NL, 2023 1st prize  0
030 - Nieuwe Veenmarkt Zwolle NL, 2023 1st prize  1
030 - Nieuwe Veenmarkt Zwolle NL, 2023 1st prize  2
030 - Nieuwe Veenmarkt Zwolle NL, 2023 1st prize  3
030 - Nieuwe Veenmarkt Zwolle NL, 2023 1st prize  4
030 - Nieuwe Veenmarkt Zwolle NL, 2023 1st prize  5
030 - Nieuwe Veenmarkt Zwolle NL, 2023 1st prize  6
Back
EN DE NL